Moderne lejlighed med lys og kvalitet i Nørresundby

Rent 8.200 kr/md
Rental Period Ubegrænset
Type Lejlighed
Location Nørresundby
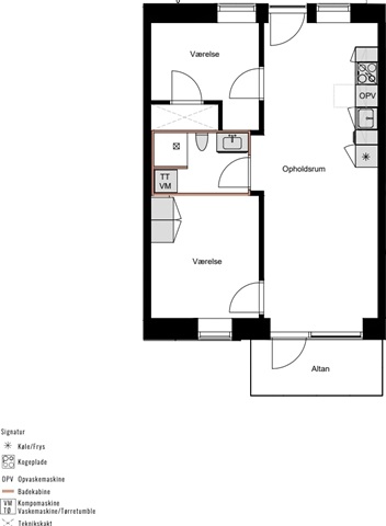
Area 69
Rooms 3 værelser

Stigsborg Parkvej, etage: 5. 2..

Denne lyse og kvalitetssikrede lejlighed på 69 kvadratmeter byder velkommen med en indbydende og indflytningsklar atmosfære. Boligen består af tre værelser og præsenterer et rummeligt køkken-alrum, hvor store vinduespartier sørger for et naturligt lysindfald. Her er der installeret et moderne og grebsfrit HTH-køkken, som er forsynet med en elegant Corian-bordplade samt en komplet AEG hvidevarepakke. Fra køkken-alrummet fører en dør ud til en stor altan, ideel til afslappende aftener med grill og hyggeligt samvær. Lejligheden indeholder desuden to værelser, hvoraf det ene har integrerede skabe, samt et lyst badeværelse med en praktisk vaskesøjle.

Ejendommen er en nyopført konstruktion benævnt Fjordpynten, der tilbyder adgang til fællesfaciliteter som en stor tagterrasse med orangeri og en charmerende gårdhave prydet med frugttræer og grønne områder. Mulighed for leje af parkeringsplads er tilgængelig. Bygningen er udført med fokus på materialekvalitet, hvilket afspejles i de smukke fuldstavsparketgulve i eg, den behagelige gulvvarme samt en genvex-ventilationsløsning i samtlige rum.

Beliggenheden er attraktiv med fjorden og Stigsparken som tætte naboer, samtidig med at der er kort afstand til dagligvareindkøb, offentlig transport og diverse faciliteter. Lejemålets reference er EB497767.

  • Parkering
  • Elevator
  • Forudbetalt leje: 0
  • Depositum: 24.600
  • A/C-forbrug: 700
  • Ledig: 1. juli 2026
  • Indrykket:
  • Husdyr ikke tilladt
  • Sagsnummer: 1891007