Hus/villa på Bornholms Alle i Taastrup

Rent 12.500 kr/md
Rental Period Ubegrænset
Type Hus/villa
Location Taastrup
Area 92
Rooms 3 værelser

Bornholms Alle.

På Bornholms Alle, som ligger centralt i Høje Taastrup, tilbydes et udvalg af lejligheder, som egner sig til både bofæller, små familier, par og singler. Alle lejlighederne består af tre værelser og fremstår fuldstændig klar til indflytning med lyse og imødekommende rum. Det er værd at bemærke, at både bolig og beliggenhed bidrager til en god helhedsoplevelse, og nærmere detaljer om området følger herunder.

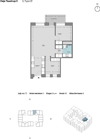
Boligerne ligger på ét niveau og har enten altan eller terrasse som udeareal. Der hører desuden et depotrum i kælderen med en størrelse på 2-4 m² til hver lejlighed. Køkkenet er udstyret med kølefryseskab, indbygningsovn, kogeplade, emhætte samt opvaskemaskine, og der er tilmed vaskemaskine og tørretumbler til rådighed for beboerne. Ejendommen rummer i alt 101 lejligheder, har elevator og benytter fjernvarme som varmekilde med gulvvarme installeret i alle boliger. Internetforbindelsen leveres af TDC via fibernet. Husdyr er tilladt, herunder op til to dyr pr. lejlighed uden nogen størrelsesbegrænsning. Parkering foregår i et parkeringshus ved siden af ejendommen, hvor 52 licenser kan erhverves, og cykler kan parkeres i stativer i kælderen. Til fællesbrug er der et orangeri på tagterrassen samt et legeområde i gården.

Med beliggenheden på Bornholms Alle, som er en sidegade til Hveen Boulevard, er der nem adgang til det omkringliggende område samt de større vejforbindelser som Holbækmotorvejen mod nord og Motorvej 4 samt Køge Bugt Motorvejen mod syd. Høje Taastrup Station ligger inden for gåafstand og tilbyder både S-tog og regionaltog med hyppige afgange mod Københavns Hovedbanegård. I området findes desuden et bredt udvalg af pasningstilbud, skoler og indkøbsmuligheder, hvilket gør hverdagen overskuelig og bekvem. For fritidsaktiviteter er det en fordel, at City2 kun ligger få minutters gang væk med et stort udvalg af butikker, caféer og spisesteder. Ved siden af centeret finder man også en populær skatepark.

Er cyklen foretrukken, er en tur til Taastrup Hovedgade interessant med sin hyggelige atmosfære og mange specialbutikker. I nærheden af denne gade ligger Taastrup Station samt rekreative områder ved Selsmosen, som kan nydes året rundt.

Af øvrige oplysninger kan nævnes, at billeder, plantegning og tekst alene er vejledende og kan afvige fra de faktiske forhold. Som udgangspunkt udlejes boligerne ikke til personer registreret i RKI, og der foretages kontrol i den forbindelse ved udarbejdelse af lejekontrakten. Lejen udgør 600 kroner om måneden.

  • Forudbetalt leje: Kontakt udlejer
  • Depositum: Kontakt udlejer
  • A/C-forbrug: Kontakt udlejer
  • Ledig: 1. juli 2026
  • Indrykket:
  • Husdyr tilladt
  • Sagsnummer: 1890904