2 værelser for 13.500 kr. pr. måned

Rent 13.500 kr/md
Rental Period Ubegrænset
Type Lejlighed
Location Valby
Area 64
Rooms 2 værelser

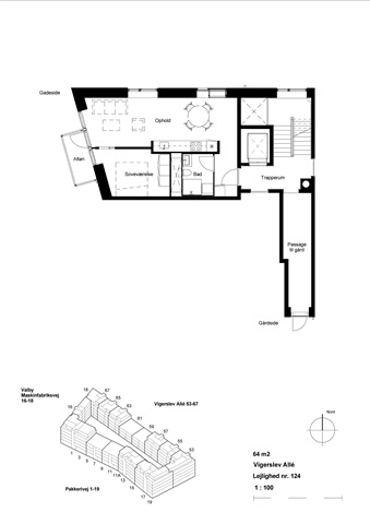
Vigerslev Allé, etage: 1. th..

I hjertet af Valby ligger denne nyopførte ejendom, som rummer en moderne og velindrettet lejlighed. Boligen, der er ideel for både par og mindre familier, byder på en gennemtænkt planløsning og anvendelse af kvalitetsmaterialer. Bygningen fremstår med en facadesammensætning af mursten og metalplader på øverste etage, hvilket tilføjer et råt, arkitektonisk udtryk. Udefra bemærkes de store vinduespartier samt altanerne, som giver liv til facaden og bryder dens ellers ensartede udtryk.

Indgangspartiet er i åben forbindelse til resten af lejligheden og indeholder et rummeligt fast indbygget skab, der er velegnet til opbevaring af overtøj. Badeværelset har en bruseniche og er tilstrækkeligt stort til at rumme en vaskesøjle. Lejlighedens soveværelse imponerer med sin rummelighed og det flotte naturlige lysindfald. Opholdsstuen udgør den største del af boligens kvadratmeter og præsenterer sig med lyse, moderne detaljer, smukt gulvbelægning og store vinduer. Køkkenets funktionelle og pladsbesparende installation er placeret langs én væg, hvilket gør det åbne opholdsrum til et alsidigt og indbydende område. Fra stuen er der adgang til et praktisk depotrum, et stort vinduesparti samt en terrassedør, der åbner ud mod en sydvendt altan med udsigt til det omgivende nabolag.

Lejlighedens centrale beliggenhed giver nem adgang til flere faciliteter med mindre end en halv kilometer til daginstitution, skole og MENY. Tilsvarende kort afstand fører til Valby Station, mens nærområdet byder på hyggelige caféer langs Valby Langgade samt gode shoppingmuligheder i Spinderiet. Bemærk venligst, at de viste billeder, plantegning og beskrivende tekst er vejledende og kan afvige fra den faktiske bolig. Lejligheden kan desværre ikke tilbydes til personer, der er registreret i RKI, hvilket vil blive kontrolleret i forbindelse med lejekontraktens udarbejdelse.

  • Forudbetalt leje: 0
  • Depositum: Kontakt udlejer
  • A/C-forbrug: Kontakt udlejer
  • Ledig: 1. maj 2026
  • Indrykket:
  • Muligvis tilladt - spørg udlejer
  • Sagsnummer: 1890897