4 værelser for 10.395 kr. pr. måned

Rent 10.395 kr/md
Rental Period Ubegrænset
Type Hus/villa
Location Hjortshøj
Area 125
Rooms 4 værelser

Mejlbyparken.

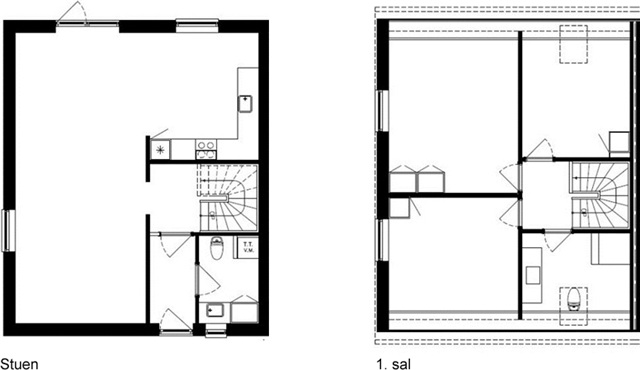
I en børnevenlig udstykning findes dette halve dobbelthus, som er særligt velegnet til en lille børnefamilie. Boligen er fordelt på to etager og byder på en entré med adgang til et gæstetoilet. Køkkenet ligger i åben forbindelse med stuen, som desuden har direkte udgang til en privat terrasse og tilhørende have. På førstesalen er der et soveværelse, et badeværelse samt to værelser, som kan anvendes som børneværelser eller ekstra værelser. Indretningen præsenterer sig lyst med hvide vægge, laminatgulve og elementer i køkken og bad i hvidt. Forbruget afregnes direkte med forsyningsselskaberne.

Mejlby er en charmerende og velfungerende landsby beliggende nord for Aarhus, som i øjeblikket er ved at vokse sammen med den nærliggende landsby Hårup, kun en halv kilometer fra ejendommen. I Hårup findes både daginstitution og skole med undervisning fra 0. til 9. klasse. Skolebussen sikrer, at børnene bliver transporteret sikkert til og fra skolen, og når børnene bliver ældre, kan de benytte den lukkede cykelsti, der forbinder Mejlby med Hårup.

Derudover er der en lokal købmand i byen, og området er kendetegnet ved et stærkt fællesskab omkring faciliteter som Håruphallen, spejderhytten, forsamlingshuset og kirken.

  • Delevenlig
  • Altan/terasse
  • Parkering
  • Forudbetalt leje: 10.395
  • Depositum: 31.185
  • A/C-forbrug: Kontakt udlejer
  • Ledig: 15. maj 2026
  • Indrykket:
  • Husdyr tilladt Efter aftale
  • Sagsnummer: 1890211