Dejlig lejlighed udlejes

Rent 7.000 kr/md
Rental Period 1 år og mere
Type Lejlighed
Location Køge
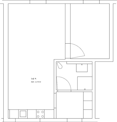
Area 55
Rooms 2 værelser

Ølbyvej.

Dejlig istandsat lejlighed fra 2021 i Ølby. Lejligheden ligger i den gamle charmende gårds sidehus og består af stort køkkenalrum med åben forbindelse til stuen, et dejligt stort soveværelse.

Køkkenet er fra SVANE, med alt i hårdehvidevarer, badeværelset er velindrettet med god stor bruseniche og vaskeskab. Soveværelset har indbygget klædeskabe og der er god plads til stor dobbeltseng.

Der er adgang til vaskemaskine og tørretumbler som deles med en anden lejlighed.

Lejligheden er oplagt til en enlig eller et par.

Kontakt udlejer for at booke en fremvisning.

  • Altan/terasse
  • Parkering
  • Forudbetalt leje: 21.000
  • Depositum: 21.000
  • A/C-forbrug: 400
  • Ledig: 15. april 2026
  • Indrykket:
  • Husdyr ikke tilladt
  • Sagsnummer: 1889677