Hyggeligt byhus med have

Rent 8.000 kr/md
Rental Period 1 år og mere
Type Hus/villa
Location Karup J
Area 121
Rooms 4 værelser

Kongemosevej.

Velholdte villa, der foruden en attraktiv beliggenhed tæt på alle hverdagens fornødenheder også byder på en velkomponeret planløsning i form af lyse opholdsrum og tre værelser.
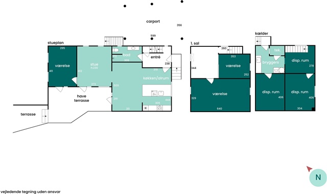
I stueplanet centrerer hjemmet sig omkring de to indbydende opholdsrum. Køkken-alrummet og stue med et dejligt lysindfald.
Stueplanet rummer også et værelse og et badeværelse, mens førstesalen er indrettet med to værelser som er udført med loft til kip. Kælderen indeholder et bryggers og tre disponible rum. På grunden ses fortrinlige terrasser med masser af sol.

  • Altan/terasse
  • Parkering
  • Have
  • Forudbetalt leje: Kontakt udlejer
  • Depositum: 24.000
  • A/C-forbrug: 1.300
  • Ledig: 1. maj 2026
  • Indrykket:
  • Kontakt udlejer
  • Sagsnummer: 1889668