Hus/villa med altan/terrasse

Rent 14.395 kr/md
Rental Period Ubegrænset
Type Hus/villa
Location Ringsted
Area 115
Rooms 4 værelser

Nonnedalen, etage: 0..

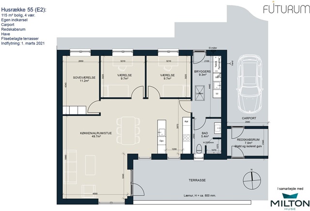
Denne bolig er et gårdhavehus med en privat og velholdt have, tilhørende carport samt et redskabsskur på 7 m². Boligen er praktisk planlagt med et kombineret bryggers og entréområde, et badeværelse, et køkkenalrum udstyret med et moderne køkken, som ligger i åben forbindelse med stuen. Fra køkkenalrummet kan man gå direkte til hovedsoveværelset, der rummer tre faste skabe, samt to yderligere værelser. Stuen har udgang til en terrasse, hvor der er en muret læmur, som afskærmer mod vinden.

Boligen fremstår lys og indbydende, med mange store vinduespartier, der sikrer et godt lysindfald i alle rum. Overalt i boligen er vægge og lofter holdt i en glat, hvid finish. Køkkenalrummet, stuen og værelserne har lyse laminatgulve udført som egeplanker, mens entré, bryggers, badeværelse og brus er belagt med store klinker i en mørkegrå nuance. Dørene er glatte og hvide med rustfri stålgreb, og der er ikke nogen dørtrin, hvilket optimerer adgangen. Vinduernes karme er murede og vandskurede i hvid, og væggene er afsluttet mod gulvet med hvide, glatte fodpaneler.

Indvendigt er køkken, bad, bryggers og soveværelser udstyret med moderne HTH-moduler med glatte, hvide fronter og rustfri greb. Bordpladerne er i slidstærkt laminat med en rustik skiferfarve, og der er en rummelig stålvask. Bag kogepladsen er der en stænkplade, som gør rengøringen lettere. Badeværelsesvasken er fremstillet af formstøbt materiale, toilet fra Ifö Sign, kvalitetsarmaturer fra den tyske leverandør Hans Grohe samt lineære afløb i brusenichen. Alle hvidevarer medfølger i anerkendt kvalitet, og der er tilrettelagt plads til vaskemaskine og tørretumbler i bryggerset, som lejer selv skal medbringe.

I badeværelse, bryggers og entré er der installeret spots, og derudover er der spots i overskabene i køkkenet. Gulvvarme er lagt i hele huset og kan betjenes via separate trådløse termostater i hvert rum. Boligen er desuden udstyret med ventilationsanlæg, som sikrer et sundt og behageligt indeklima. Udvendigt findes stikkontakt, vandhane og lampe ved entredøren samt postkasse ved boligen.

Alt forbrug afregnes direkte mellem lejer og de respektive forsyningsselskaber, og opvarmningen sker via fjernvarme. Parkering foregår i tilknytning til boligen i carporten. Illustrationsbillederne er modelfotos, og der tages forbehold for eventuelle ændringer.

  • Forudbetalt leje: 13.879
  • Depositum: 41.638
  • A/C-forbrug: Kontakt udlejer
  • Ledig: 1. juni 2026
  • Indrykket:
  • Husdyr tilladt
  • Sagsnummer: 1889605