Optimal udnyttet 2 værelses bolig med stort badeværelse og altan. Optimal for dig, der er over 50 år

Rent 9.500 kr/md
Rental Period Ubegrænset
Type Lejlighed
Location Holbæk
Area 53
Rooms 2 værelser

Rønnebærvænget, etage: 1. 131..

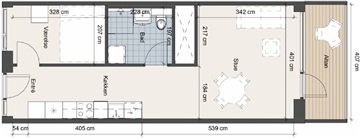
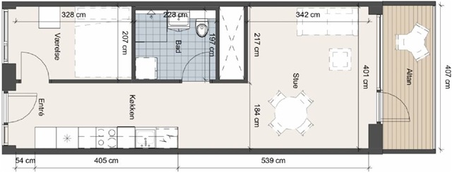
Denne lejlighed rummer to værelser, hvoraf soveværelset har udsigt til atriumhaven, mens stuen vender ud mod en rummelig altan. Soveværelsesvinduet vender direkte mod atriumhaven. Boligen har desuden et lyst badeværelse med gulvvarme, der fremstår rummeligt, samt et moderne køkken, som åbner op mod den lyse stue. Fra stuen er der adgang til en privat og udendørs altan. Mod atriumhaven findes et forareal, hvor det er muligt at skabe en hyggelig krog, for eksempel med et lille metal café-sæt eller et par dekorative krukker, hvilket er oplagt at benytte også i de køligere perioder. Viggohaven er blevet opført med fokus på miljøet; både facader og bærende elementer er udført i træ og designet til at have så lav en klimaaftryk som muligt. Opvarmningen styres via luft-til-luft varmepumper, der er blandt de mest effektive og bæredygtige løsninger på markedet. Varmepumpen drives af elektricitet, og aconto-betalingen for el inkluderer således både opvarmning samt forbrug til madlavning, belysning og øvrige husholdningsaktiviteter. Lejligheden indeholder desuden en entré, et badeværelse med plads til en vaskesøjle, et soveværelse med indbygget skab, et moderne køkken med overskabe og integreret opvaskemaskine, en stue med udgang til en privat altan samt et depotrum på terræn.

Viggohaven tilbyder en bred vifte af fælles faciliteter, som beboerne kan vælge til efter behov, og boligernes indretning fremmer socialt samvær. Som beboer i Viggohaven bliver du en del af et fællesskab, hvor man vægter grønne omgivelser, en aktiv livsstil og et godt naboskab i seniorlivet højt.

Beliggenheden i Viggohaven er attraktiv med kun få minutters gang til Holbæk Fjord samt nærhed til både butikker og offentlig transport. Byen rummer et aktivt kulturliv med teaterforestillinger, lokale arrangementer, hyggelige caféer og gode shoppingmuligheder. For naturelskeren byder området på smukke vandreture langs fjorden, cykelruter gennem skovene og mulighed for afslapning ved vandet. Derudover findes mange foreninger, som gør det nemt at finde nye sociale netværk og holde sig aktiv. Bemærk, at de viste møblerede billeder kan være skabt ved hjælp af kunstig intelligens.

  • Forudbetalt leje: 9.500
  • Depositum: 28.500
  • A/C-forbrug: 250
  • Ledig: 1. april 2026
  • Indrykket:
  • Husdyr tilladt
  • Sagsnummer: 1888913