Dejlig lys og hyggelig 2-værelses lejlighed

Rent 6.325 kr/md
Rental Period Ubegrænset
Type Lejlighed
Location Aalborg
Area 74
Rooms 2 værelser

Fredericiagade.

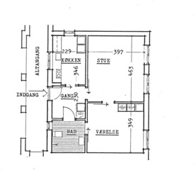
Lejligheden fremstår som en lys og rummelig bolig med en funktionel indretning. Når man træder ind gennem hoveddøren, mødes man af en entré, hvor der er plads til overtøj og sko. Fra entréen er der adgang til det ene af lejlighedens badeværelser. Bygningen er både ældrevenlig og handicapvenlig, idet den er udstyret med to separate indgange, som man naturligvis kan vælge at lukke, hvis man ønsker for eksempel at stille en kommode foran.

Rakt frem fra entréen åbner den store stue sig op med rigelig gulvplads og gode vinduespartier, hvilket skaber et lyst og behageligt rum. Stuen kan indrettes på forskellige måder, og der er tilstrækkelig plads til både sofa, tv og spisebord. Køkkenet, som også er tilgængeligt fra entréen, er holdt i moderne og flotte materialer. Her er installeret opvaskemaskine, og ovnen er placeret i en højde, der gør det nemt at betjene uden at skulle bøje sig. Der er desuden god opbevaringsplads samt plads til personlige tilpasninger.

Soveværelset er af god størrelse og indeholder allerede et rummeligt skab til opbevaring. Derfra er der adgang til badeværelset, som også kan nås fra entréen. Foran lejligheden ligger en svalegang med udsigt til en attraktiv gårdhave.

Ejendommen har en elevator, og der er et fælles vaskeri i bygningen overfor. Det er dog også muligt at installere sin egen vaskemaskine på badeværelset. Parkeringsmuligheder findes i ejendommens område, hvor det er muligt at få en gratis parkeringslicens efter først-til-mølle-princippet.

Det skal bemærkes, at husdyr op til 10 kilo er tilladt i lejligheden.

Beliggenheden i Aalborg Vestby giver et område med stor karakter og varieret arkitektur, der spænder fra rå murstensfacader med et næsten New York-inspireret udtryk til moderne lejlighedskomplekser. Området byder på et bredt udvalg af faciliteter inden for kort afstand, herunder dagligvarebutikker, spisesteder og caféer. Desuden findes populære steder som Friluftsbadet, Vestre Fjordpark og Aalborg Stadion i nærheden.

Vestbyen er især attraktiv blandt unge mennesker, men området tilbyder noget for enhver, hvad enten man ønsker en svømmetur om morgenen eller ønsker at besøge biblioteket i Haraldslund. Der er også gode grønne områder at benytte sig af, såsom Fjordmarken og Søheltens Have.

Lejenummer: 1214OBG

  • Parkering
  • Elevator
  • Forudbetalt leje: 0
  • Depositum: 18.975
  • A/C-forbrug: 900
  • Ledig: Straks
  • Indrykket:
  • Husdyr tilladt
  • Sagsnummer: 1888220