2 værelses lejlighed tæt på Fredericia midtby

Rent 5.200 kr/md
Rental Period Ubegrænset
Type Lejlighed
Location Fredericia
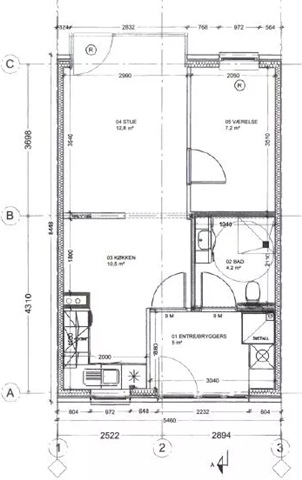
Area 49
Rooms 2 værelser

Viaduktvej, etage: 0..

Denne 49 m² store lejlighed er placeret centralt i Fredericia, med nem adgang til både indkøbsmuligheder og sportsfaciliteter. Afstanden til byens centrum er cirka ti minutter, og stationen ligger ligeledes i nærheden. Madsbyparken findes inden for gåafstand, hvilket giver gode muligheder for rekreation.

Boligen består af et rummeligt, lyst køkkenalrum og et soveværelse samt et badeværelse med bruser, der hører til lejligheden. Det åbne stue-køkken område er indrettet med hvide køkkenelementer, som omfatter integreret ovn, kogeplader og køleskab. Stuen har trægulve og store vinduespartier, der lukker masser af lys ind og giver adgang til en terrasse. Soveværelset er stort nok til en dobbeltseng, mens badeværelset har en bruseniche. I entreen er der installeret en vaskesøjle med vaskemaskine og tørretumbler for øget funktionalitet.

Ud over selve lejligheden byder området på grønne arealer og en legeplads, som skaber gode muligheder for udendørs aktiviteter. Tilhørende lejligheden er et depotrum, og der er mulighed for gratis parkering tæt på boligen. Husdyr kan medtages efter forudgående aftale. Depositummet kan eventuelt betales af i rater efter nærmere aftale. De viste billeder er vejledende, og der arrangeres altid en fremvisning ved interesse.

Energimærke:
  • Ældrebolig
  • Altan/terasse
  • Parkering
  • Forudbetalt leje: 5.200
  • Depositum: 15.600
  • A/C-forbrug: Kontakt udlejer
  • Ledig: 15. april 2026
  • Indrykket:
  • Husdyr tilladt
  • Sagsnummer: 1887689