2-værelses lejlighed centralt i Odense C – 42 Kvm

Rent 5.250 kr/md
Rental Period Ubegrænset
Type Lejlighed
Location Odense C
Area 42
Rooms 2 værelser

Nyborgvej.

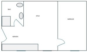
Denne 2-værelses bolig ligger i et fredeligt område bag Nyborgvej med adgang via Edvard Brandes Gade. Lejligheden nås fra en udendørs svalegang, hvor der er plads til et mindre cafebord. Når man træder ind, møder man et velholdt køkken, som ligger i åben forbindelse med opholdsstuen. Herfra er der adgang til et generøst soveværelse, som har god plads til skabe. Badeværelset er af en størrelsesorden, der giver ekstra komfort.

Udover boligens indre faciliteter er der et tilhørende depotrum i kælderen. Der findes desuden et stort fælles vaskeri samt cykelparkering til beboernes brug. Mulighed for at leje en parkeringsplads umiddelbart ved boligen er også tilgængelig.

Energimærke:
  • Forudbetalt leje: 5.250
  • Depositum: 15.750
  • A/C-forbrug: 500
  • Ledig: 15. april 2026
  • Indrykket:
  • Husdyr ikke tilladt
  • Sagsnummer: 1885429