Parkhusene

Rent 8.750 kr/md
Rental Period Ubegrænset
Type Lejlighed
Location Viborg
Area 104
Rooms 4 værelser

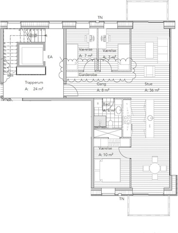
Vilhelm Ehlerts Alle, etage: 1. tv..

Ved indgangen til denne lejlighed møder man en stor entré, der rummer rigeligt med plads til både sko og overtøj. To værelser er placeret på den ene side af denne gang, mens et badeværelse befinder sig modsat. Videre inde i lejligheden breder et åbent køkken-alrum sig ud og forbinder sømløst med stuen, som har adgang til en altan i hver ende af det rummelige opholdsrum. Fra køkken-alrummet kan man desuden gå ind i et ekstra værelse, som byder på gode muligheder for opbevaring.

Lejlighederne er alle forsynet med moderne hårde hvidevarer. Derudover inkluderes både depotrum til hver bolig og adgang til parkeringspladser, hvilket bidrager til både bekvemmelighed og praktiske opbevaringsmuligheder.

  • Delevenlig
  • Altan/terasse
  • Elevator
  • Forudbetalt leje: Kontakt udlejer
  • Depositum: 26.250
  • A/C-forbrug: Kontakt udlejer
  • Ledig: 1. juni 2026
  • Indrykket:
  • Husdyr tilladt Kræver tilladelse
  • Sagsnummer: 1884339