75 m2 lejlighed med altan/terrasse

Rent 4.964 kr/md
Rental Period Ubegrænset
Type Lejlighed
Location Viborg
Area 75
Rooms 2 værelser

Rughavevej, etage: 1. tv..

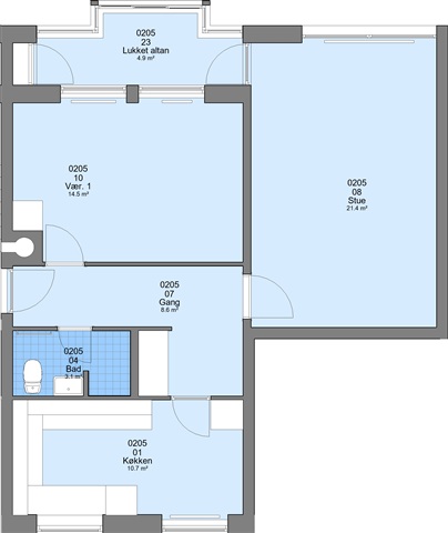
Lejligheden på Rughavevej i Viborg er en 2-værelses lejlighed med et areal på 75 kvadratmeter. Huslejen ligger på 4.964 kr. om måneden, og der betales et depositum på 17.100 kr. Udover huslejen er der et aconto-forbrug til vand og varme på 1.163 kr. Lejligheden har egen altan, som giver mulighed for udendørs ophold. Boligen er uden indvendige trapper, hvilket kan være en fordel for tilgængeligheden.

Lejligheden har eget køkken og bad, og der findes fælles vaskeri til beboernes brug. Opvarmningen sker via fjernvarme og naturgas leveret af Viborg Varmeværk. Der er mulighed for parkering i tilknytning til ejendommen. Desuden er der et loftsrum i kælderen, som kan benyttes til opbevaring. Det er muligt at søge indskudslån i forbindelse med lejemålet.

Viborg er en by med flere uddannelsesinstitutioner inden for kort afstand, hvilket kan være relevant for studerende eller personer tilknyttet uddannelsessektoren. Blandt de nærliggende uddannelsessteder er Erhvervsakademi Dania, VIA University College på både Campus Viborg og Kasernevej, samt Mercantec med flere afdelinger, herunder HCA-afdelingen og Banegårds Alle. Derudover ligger Aarhus Maskinmesterskole med Maskinmesteruddannelsen i Viborg tæt på. Social- og Sundhedsskolen, Skive-Thisted-Viborgs afdeling i Viborg, samt Asmildkloster Landbrugsskole, er også placeret inden for en radius på cirka fem kilometer.

Området omkring Rughavevej har gode muligheder for transport. Der er busstoppesteder inden for en kort gåafstand, hvor flere buslinjer betjener området. Dette gør det nemt at komme til Viborgs centrum samt til omkringliggende områder. For cyklister er der gode cykelstier, hvilket giver en hurtig og sikker adgang til byens faciliteter og uddannelsesinstitutioner.

I forhold til daglige behov er der mulighed for indkøb i nærområdet. Viborg bymidte, som ligger tæt på, tilbyder et bredt udvalg af butikker, supermarkeder og specialforretninger. Dette sikrer adgang til dagligvarer og andre fornødenheder inden for kort afstand fra boligen. Samlet set kombinerer lejligheden i Viborg både praktiske faciliteter og en beliggenhed tæt på uddannelse, transport og indkøb.

  • Forudbetalt leje: Kontakt udlejer
  • Depositum: 17.100
  • A/C-forbrug: 1.163
  • Ledig: 15. april 2026
  • Indrykket:
  • Muligvis tilladt - spørg udlejer
  • Sagsnummer: 1884251