Dato for åbent hus kan kun ses med en aktiv boligsøgerpakke - klik her

3-værelses lejlighed med altan

Rent 16.500 kr/md
Rental Period Ubegrænset
Type Lejlighed
Location Valby
Area 84
Rooms 3 værelser

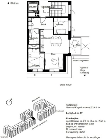
Gammel Køge Landevej, etage: 5. 1..

Velkommen til Gl. Køge Landevej i Valby Maskinfabrik

Træd ind i denne charmerende lejlighed, som byder dig velkommen med en rummelig entré. Herfra får du adgang til lejlighedens moderne badeværelse samt to komfortable soveværelser. Midtpunktet i boligen er det imponerende lyse køkkenalrum. Her kan du udfolde din kulinariske passion i et nyere køkken, der stråler af kvalitet og funktionalitet. Fra køkkenalrummet fører en dør dig ud til lejlighedens private altan, hvor du kan nyde solens stråler og frisk luft.

Du kommer til at bo i en attraktiv lejebolig ejendom, hvor du får;
- Beboelsesperiode så længe du vil
- Mulighed for tilladelse til husdyr (efter aftale)
- Professionel udlejer
- Fælles grønne områder og fællesarealer
- Hårde hvidevarer inkluderet i køkkenet
- Vær opmærksom på at der er en bindingsperiode på 12 måneder

Din nye adresse er placeret i det eftertragtede Valby Maskinfabrik, i Tandhjulet. Området er kendt for sit pulserende nærmiljø med et rigt udvalg af supermarkeder, hyggelige caféer og bekvemme offentlige transportforbindelser. Med Valby Station og den kommende Metro station, Ny Ellebjerg, i 2024, er byens hjerte kun en kort rejse væk. Desuden finder du i nærheden et væld af idrætsfaciliteter, skoler og daginstitutioner.

Som en ekstra bonus får du adgang til et depotrum – enten direkte i lejligheden eller i kælderen. I kælder er der desuden mulighed for leje af parkeringsplads.

Interesseret i at opleve denne skønne lejlighed? Vi ser frem til at byde dig velkommen til en fremvisning.

  • Forudbetalt leje: 16.500
  • Depositum: 49.500
  • A/C-forbrug: 800
  • Ledig: 1. maj 2026
  • Indrykket:
  • Husdyr tilladt
  • Sagsnummer: 1882690