4 værelses lejlighed på 105 m2

Rent 10.195 kr/md
Rental Period Ubegrænset
Type Lejlighed
Location Brabrand
Area 105
Rooms 4 værelser

Emma Gads Gade, etage: 1. tv..

Pionérhusene er beliggende i Brabrand, med umiddelbar tæthed til Åbyhøj og cirka 5 kilometer fra Aarhus centrum. Området byder på en god boligoplevelse med attraktiv værdi i et miljø, der er under hastig udvikling. Nærområdet rummer blandt andet Byparken, som indeholder store grønne områder med frugttræer, legepladser samt fine muligheder for ophold. I nærheden finder man desuden det nye Karen Blixen Kvarter, et moderne boligområde præget af fokus på fællesskab, mangfoldighed, naboskab og gode rammer for børn. Området er kendetegnet ved mange lokale initiativer, et rigt udvalg af aktiviteter og et stærkt foreningsliv.

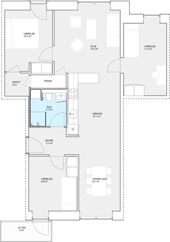
Lejligheden er planlagt med en tidssvarende og funktionel indretning, der blandt andet inkluderer en entré, som fører til et pænt badeværelse udstyret med vaskemaskine og tørretumbler. Køkkenet er åbent og moderne med HTH-inventar, komplet med alle hårde hvidevarer, i åben forbindelse til stuen. Der er tre værelser af god størrelse, hvilket gør lejligheden velegnet til delelejlighed, og der findes adgang til en dejlig altan. Til lejemålet hører et stort depotrum. Parkeringsmulighederne er gode med fri parkering ved ejendommen.

Det skal bemærkes, at billederne er fra en tilsvarende lejlighed i ejendommen, og at materialer samt standard svarer til denne. Der er mulighed for tilladelse til at holde én lille hund på maksimalt 10 kg. Udlejning sker ikke til personer, der er registreret i RKI.

  • Forudbetalt leje: 10.195
  • Depositum: 30.585
  • A/C-forbrug: Kontakt udlejer
  • Ledig: 1. marts 2026
  • Indrykket:
  • Muligvis tilladt - spørg udlejer
  • Sagsnummer: 1880300