Parkhusene

Rent 8.750 kr/md
Rental Period Ubegrænset
Type Lejlighed
Location Viborg
Area 103
Rooms 4 værelser

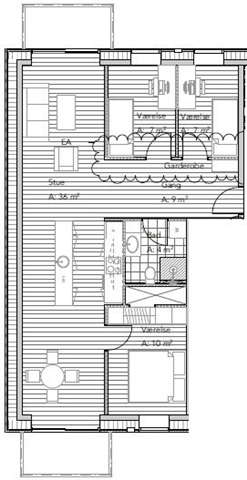
Vilhelm Ehlerts Alle, etage: 4. th..

Ved ankomsten til lejligheden, som er beliggende på 4. sal, træder man ind i en bred gang, der rummer rigeligt med plads til opbevaring af både overtøj og sko. Langs den ene side af gangen ligger to værelser, mens badeværelset befinder sig på modsatte side. Videre indenfor folder et stort og åbent køkken-alrum sig ud i direkte forbindelse med stuen, der udgør det centrale opholdsområde. I hver ende af denne rummelige stue findes en balkon. Fra køkken-alrummet er der adgang til endnu et værelse, der har en god størrelse og egner sig til opbevaring. Samtlige boliger er desuden forsynet med moderne og tidssvarende hvidevarer.

Boligen inkluderer desuden mulighed for parkering, ligesom der er tilknyttet et depotrum til hver lejlighed, hvilket øger både bekvemmelighed og plads til opbevaring.

  • Forudbetalt leje: Kontakt udlejer
  • Depositum: 26.250
  • A/C-forbrug: Kontakt udlejer
  • Ledig: 1. maj 2026
  • Indrykket:
  • Husdyr tilladt Kræver tilladelse
  • Sagsnummer: 1879746