Eftertragtet 4-værelses rækkehus kun 25 minutter fra København

Rent 16.495 kr/md
Rental Period Ubegrænset
Type Hus/villa
Location Allerød
Area 108
Rooms 4 værelser

Teglhaven.

Beliggende blot en kvart times kørsel fra København finder man Teglskovshusene og dette flotte 4-værelses rækkehus, som er opført med materialer af høj kvalitet i en enkel og moderne stil. Boligen præsenterer sig med store vinduespartier og lyse overflader, der skaber et åbent og luftigt udtryk.

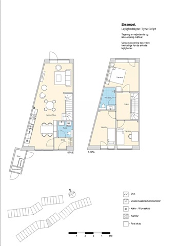
Huset er indrettet over to plan med en åben planløsning. I stueetagen møder man en lys og indbydende entré, der rummer plads til sko og overtøj. Herfra er der åbent ind til et kombineret køkken- og opholdsrum, hvor køkkenet er udstyret med grebsfrie fronter, en glaskeramisk kogeplade samt indbygningsovn, som sikrer funktionalitet og æstetik. Endvidere findes et toilet med væghængt Ifö-toilet og en praktisk vaskesøjle.

På førstesalen findes en repos samt tre lyse og regulære værelser, alle forsynet med franske altaner, hvilket tilfører rummet ekstra lys og luft. Desuden er der et badeværelse med væghængt Ifö-toilet, armaturer fra Hans Grohe og skabslåger med push-låsefunktion, der bidrager til et stilrent design.

Rækkehuset er præget af et enestående lysindfald gennem de store vinduer, og trægulvene med gulvvarme udstrækker sig over hele boligens areal. I alle rum er der monteret hvide rullegardiner, som bidrager til at regulere lysindfaldet efter behov.

Udendørs er der mulighed for at nyde privatlivet i den egen gårdhave, samtidigt med at de grønne fællesarealer giver plads til socialt samvær i et fredeligt og hyggeligt nabolag.

Ejendommen tilbyder yderligere flere faciliteter, herunder mulighed for at holde husdyr, en privat terrasse, eget skur samt komplet udstyr med hårde hvidevarer. De grønne fællesområder inkluderer en sø og et vandløb, og der findes en naturlegeplads til glæde for børnene. Boligen opvarmes via en luft-til-vand varmepumpe, og ejendommen er energimærket med karakteren A. Parkeringsforholdene er gode med fri parkering, og der er installeret el-ladestandere. Beliggenheden er desuden stationsnær, og både skole og dagligvareindkøb ligger tæt på.

Den naturskønne adresse i Allerød har fredede grønne områder og skoven som nærmeste nabo, samtidig med at byen er let tilgængelig med kun 5 minutter til Allerød centrum og cirka 25 minutter til København.

Ved indflytning skal der betales et depositum svarende til to måneders husleje, mens der ikke er krav om forudbetalt leje. Det er et krav for lejer, at man ikke er registreret i RKI.

Hvis denne bolig tiltalte dig, kan du kontakte os for at aftale en fremvisning.

Energimærke:
  • Delevenlig
  • Altan/terasse
  • Parkering
  • Forudbetalt leje: 0
  • Depositum: 32.990
  • A/C-forbrug: Kontakt udlejer
  • Ledig: 1. april 2026
  • Indrykket:
  • Husdyr tilladt
  • Sagsnummer: 1875464
Bemærk: Placeringen af boligen på kortet ovenfor kan være omtrentlig. Kontakt venligst udlejer for nærmere information om boligens beliggenhed

Brugere der har set denne bolig, har også set disse: