Dato for åbent hus kan kun ses med en aktiv boligsøgerpakke - klik her

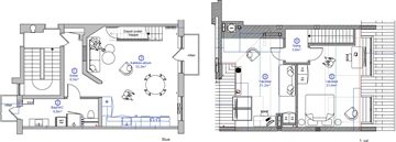
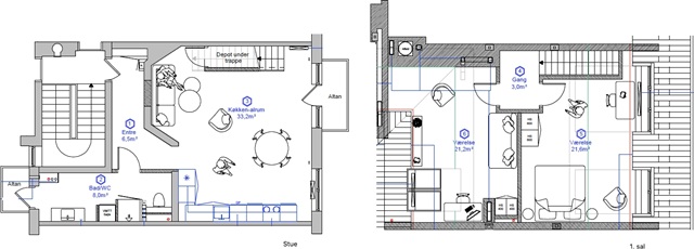
2 værelses lejlighed på 115 m2

Rent 17.633 kr/md
Rental Period Ubegrænset
Type Lejlighed
Location Frederiksberg
Area 115
Rooms 2 værelser

Mariendalsvej, etage: 4 th..

Denne nyopførte penthouse lejlighed er beliggende i Sonninghus – yderst centralt på Frederiksberg. I midten af ejendommens gård, er der et skønt fællesområde, hvor der både er plads til leg på græsplænen og stille stunder på de hyggelige terrasser. Til ejendommen hører private parkeringspladser, som kan lejes på månedlig basis, og der er privat opbevaringsrum i kælderen til alle lejemål.

Ejendommen er beliggende på en stille og ugenert sidegade til Falkoner Allé, og fra ejendommen er der kun få minutters gang til både shopping, offentlig transport herunder bl.a. metro ved Frederiksberg Centret. Endvidere er der kort afstand til naturskønne områder som Frederiksberg Have eller Søerne i indre by.

Lejligheden indeholder: Entré. Dejligt nyt badeværelse med bruseniche samt både vaskemaskine og tørretumbler. Skønt køkken/alrum med alle hårde hvidevarer, god skabs- og spiseplads og åben forbindelse til den stue med udgang til altan. På 1 sal er der indrette et stort soveværelse med indbyggede skabe og ydermere et værelse/kontor.

Da vi fortsat istandsætter lejligheden, har vi indsat henvisningsbilleder fra en af vores lignende renoveringer.

  • Altan/terasse
  • Parkering
  • Forudbetalt leje: 52.899
  • Depositum: 52.899
  • A/C-forbrug: 1.000
  • Ledig: 1. januar 2026
  • Indrykket:
  • Muligvis tilladt - spørg udlejer
  • Sagsnummer: 1874165

Brugere der har set denne bolig, har også set disse: