Denne bolig er desværre udlejet

Skøn 3-værelses stuelejlighed tæt på Pilhaven

Rent 8.995 kr/md
Rental Period Ubegrænset
Type Lejlighed
Location Viborg
Area 103
Rooms 3 værelser

Rosenstræde.

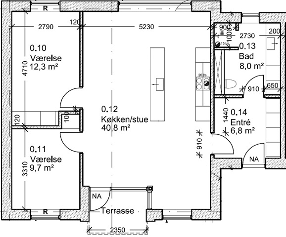
Denne lyse og veldisponerede stuelejlighed består af tre værelser og er placeret i et attraktivt område tæt på Pilhaven.

Lejligheden byder på en indbydende entré, som fører direkte ind til et åbent opholdsrum med tilknyttet køkken. Køkkenet er udført i et stilrent design og udstyret med integrerede elementer såsom køle- og fryseskab, ovn, kogeplader, emhætte samt opvaskemaskine. Der er et soveværelse med indbyggede skabe og et ekstra værelse, der kan anvendes efter behov. Badeværelset er flot indrettet med bruseniche og er desuden forsynet med vaskemaskine. Hertil følger et depotrum, der giver ekstra opbevaringsmuligheder.

Der er mulighed for at købe en parkeringsplads i parkeringskælderen ved ejendommen. Aconto betalingen dækker både vand og varme, mens elforbruget faktureres særskilt direkte til lejer.

  • Altan/terasse
  • Elevator
  • Forudbetalt leje: Kontakt udlejer
  • Depositum: 26.985
  • A/C-forbrug: 1.350
  • Ledig: Straks
  • Indrykket:
  • Husdyr ikke tilladt
  • Sagsnummer: 1873523