Denne bolig er desværre udlejet

Rummelig, stilfuld & delevenlig 4-værelses lejlighed i Århus

Rent 13.425 kr/md
Rental Period Ubegrænset
Type Lejlighed
Location Åbyhøj
Area 104
Rooms 4 værelser

Lokesvej, etage: 3, tv..

Lys og luft er nøgleordene for den samlede planløsning. Vinduerne er placeret,
så beboerne får optimal udsigt ud over de attraktive, grønne områder og ind mod
byen. Ejendommenes altaner er placeret, så de ikke skygger for hinanden, og
alligevel giver beboerne maksimal privathed. Det grønne område mellem
bebyggelserne binder det hele sammen og giver masser af udfoldelsesmuligheder i
et stort fælles område, og så ligger Åbyskolen for øvrigt lige om hjørnet.

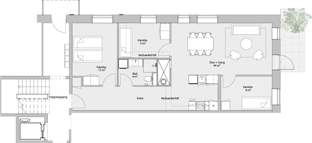
De velindrettede 4-værelses lejligheder er indrettet med en stue i åben
forbindelse med køkken og spiseplads, og er tilmed delevenlige, hvilket igen er
et stort plus for studerende. Lejligheden er dejlig lys og har en stor altan med
fantastisk udsigt over byens skyline og naturen. Lejligheden er naturligvis
udstyret med egen vaskemaskine og tørretumbler på badeværelset. Der er adgang
til depotrum i kælderen.

  • Delevenlig
  • Altan/terasse
  • Elevator
  • Forudbetalt leje: 13.425
  • Depositum: 40.275
  • A/C-forbrug: 850
  • Ledig: Straks
  • Indrykket:
  • Husdyr ikke tilladt
  • Sagsnummer: 1873386