Hus og have på Holmen på 160 kvm med 3 soveværelser

Rent 36.500 kr/md
Rental Period 1 år og mere
Type Hus/villa
Location København K
Area 160
Rooms 4 værelser

Bohlendachvej.

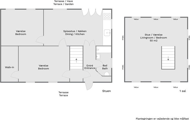
Dette charmerende halve dobbelthus på Bohlendachvej strækker sig over to etager og byder på tre soveværelser samt to haver, placeret på hver sin side af huset, hvilket sikrer sollys hele dagen. Boligen er en del af en fredet, historisk ejendom beliggende direkte ved kanalen, og husets karakteristiske tag har givet navn til vejen. I huset finder man gamle, oprindelige fritlagte bjælker kombineret med flotte Dinesen-plankegulve, hvilket giver boligen en særlig atmosfære. Denne type bolig er sjælden, og det anbefales at arrangere en fremvisning hurtigt. Huset kan lejes med indflytning straks, for en periode på 2 til 4 år.

Indretningen omfatter en entré med plads til overtøj, et pænt badeværelse med brus, og under trappen er der plads til vaskemaskine og tørretumbler. Det store, åbne køkken-alrum ligger i direkte forbindelse med stuen og har store terrassedøre, som åbner mod haven ud mod kanalsiden. Stueetagen rummer derudover to rummelige værelser samt et walk-in closet. På første sal findes et stort soveværelse på cirka 50 kvadratmeter med højt til loftet og fritlagte bjælker, ligesom resten af boligen. Desuden er der mange Velux-vinduer, som giver et godt lysindfald.

Der er mulighed for at leje parkeringsplads i Torpedohallen, som ligger lige ved siden af ejendommen. Her får man en sjælden chance for at bo centralt i byen, samtidig med at man har natur og ro lige udenfor døren. Med kun 500 meter til Kongens Nytorv via den nye Inderbro og Operaen med tilhørende have lige om hjørnet, er beliggenheden helt optimal for dem, der søger at bo midt i byens puls og alligevel tæt på grønne områder.

  • Forudbetalt leje: Kontakt udlejer
  • Depositum: 109.500
  • A/C-forbrug: 1.700
  • Ledig: Straks
  • Indrykket:
  • Muligvis tilladt - spørg udlejer
  • Sagsnummer: 1868130

Brugere der har set denne bolig, har også set disse: