Denne bolig er desværre udlejet

42 m2 lejlighed på Sionsgade

Rent 13.995 kr/md
Rental Period Ubegrænset
Type Lejlighed
Location København Ø
Area 42
Rooms 2 værelser

Sionsgade, etage: 4. 3..

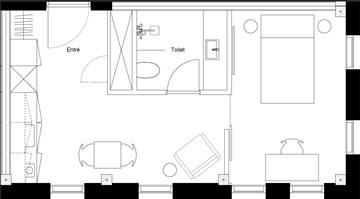
Denne 2-værelses lejlighed på 42 m² er beliggende på 4. sal i den nyopførte ejendom på Sionsgade 2, lejlighed 3.D. Boligen er designet med fokus på høj kvalitet, gennemførte materialevalg og en effektiv udnyttelse af pladsen. Den passer ideelt til singler eller par, som ønsker et centralt beliggende hjem i København med nem adgang til byens tilbud.

Lejligheden indeholder en entré med indbygget garderobeniche og adgang til badeværelset. Det store, lyse køkken-alrum har plads til både spisebord og sofaarrangement. Køkkenet fra Invita er udstyret med integreret køleskab, ovn samt opvaskemaskine. Derudover findes et separat soveværelse med vindue, der vender mod det rolige gårdmiljø, og som rummer god plads til dobbeltseng og skab. Badeværelset er udstyret med gulvvarme, en separat bruseniche og vaskemaskine. Den åbne planløsning kombinerer køkken og stue til et imødekommende fællesrum, der optimerer funktionaliteten på færre kvadratmeter.

Boligens udtryk er præget af et moderne og råt design, hvor rå betonlofter og synlige limtræssøjler tilfører karakter og kant, mens et parketgulv i eg skaber varme og naturlig elegance. De store vinduespartier sikrer rigeligt dagslys ind i rummet.

Som beboer har man adgang til en række fælles faciliteter, herunder et fælleshus med køkken, bar og toilet, der er velegnet til sociale sammenkomster og arrangementer. Derudover er der en fælles gårdhave, anlagt som en grøn oase mellem bygningen og fælleshuset, samt et privat depotrum i kælderen til opbevaring. Ejendommen er opført med fokus på bæredygtighed og høj energieffektivitet, blandt andet med solceller på taget og anvendelsen af en innovativ trækonstruktion i Cross-Laminated-Timber (CLT).

Den centrale placering kun 100 meter fra Poul Henningsens Plads Metrostation giver let adgang til byens faciliteter og grønne områder som Fælledparken. Fra adressen kan man nå Kongens Nytorv på under ti minutter, og både Nordhavn og Svanemøllen ligger ligeledes inden for kort afstand.

  • Forudbetalt leje: 13.995
  • Depositum: 41.985
  • A/C-forbrug: Kontakt udlejer
  • Ledig: 15. april 2026
  • Indrykket:
  • Husdyr ikke tilladt
  • Sagsnummer: 1864484