3 værelser for 5.725 kr. pr. måned

Rent 5.725 kr/md
Rental Period Ubegrænset
Type Lejlighed
Location Frederikshavn
Area 87
Rooms 3 værelser

Randersgade, etage: 1. tv..

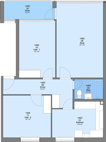
Denne lejlighed på Randersgade i Frederikshavn byder på 87 kvadratmeter fordelt på tre værelser, hvilket giver plads til en række forskellige boligindretninger. Huslejen er på 5.585 kroner om måneden, og der betales et depositum på 11.000 kroner. Derudover er der et aconto-forbrug til el og vand på 1.244 kroner. Lejligheden er udstyret med eget køkken, bad og toilet, hvilket sikrer privatliv og selvstændighed. Varme og vand er inkluderet i huslejen, og opvarmningen sker via fjernvarme. En altan eller terrasse er tilgængelig, hvilket giver mulighed for udendørs ophold.

Lejligheden ligger i Frederikshavn, en by med gode faciliteter og en række uddannelsesinstitutioner inden for en radius af fem kilometer. Nogle af de nærmeste uddannelsessteder inkluderer SOSU Nord Frederikshavn, UCN Kirkegade, Frederikshavn Handelsskole samt EUC Nord på Hånbækvej. Derudover findes Skoleskibet 'Danmark', MARTEC - Maritime and Polytechnic College, og DTU Frederikshavn Campus i området, hvilket gør det til et relevant område for studerende og personer tilknyttet uddannelsesmiljøer.

I nærområdet findes der forskellige muligheder for dagligvarer og andre fornødenheder, der sikrer let adgang til det nødvendige. Frederikshavn har desuden gode offentlige transportforbindelser. Der er busstoppesteder i nærheden, som forbinder til byens centrum og andre dele af kommunen. Derudover er der gode cykelforhold, hvilket gør det nemt at komme rundt i byen på to hjul. For dem, der pendler, er der gode vejforbindelser til omkringliggende byer i regionen.

Samlet set tilbyder denne lejlighed i Frederikshavn et praktisk og rummeligt hjem med nærhed til både uddannelse, indkøb og transport, hvilket gør det til et relevant valg for personer, der ønsker at bo i byen under ordnede forhold.

  • Forudbetalt leje: Kontakt udlejer
  • Depositum: 11.000
  • A/C-forbrug: 1.244
  • Ledig: 15. februar 2026
  • Indrykket:
  • Muligvis tilladt - spørg udlejer
  • Sagsnummer: 1862419