Perfekt placeret 2-værelses i Odense C - KUN 1 MÅNEDS DEPOSITUM!

Rent 7.400 kr/md
Rental Period Ubegrænset
Type Lejlighed
Location Odense C
Area 64
Rooms 2 værelser

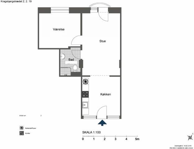
Kragsbjergstrædet, etage: 2. 19..

Lejligheden, som er beliggende i Odense C, formår at kombinere en behagelig ro med byens pulserende liv på en harmonisk måde. Den gennemførte planløsning bidrager til en funktionel opdeling, hvor køkkenet er afskærmet, og stuen fungerer som hjemmets centrale samlingspunkt. Køkkenet er rummeligt og indrettet med plads til både madlavning og eventuelt et spisebord. Den lange, store stue giver mange muligheder for indretning, så både spiseplads og sofaafsnit kan finde plads. Fra stuen er der adgang til et rummeligt badeværelse, som er forsynet med en separat bruseniche. Soveværelset ligger i den ene ende af stuen og prydes af et stort vindue, der lukker rigeligt med dagslys ind. Derudover findes der udgang til en dejlig altan, hvor man kan nyde frisk luft og udsigten.

Det bør nævnes, at billederne kan stamme fra en anden bolig, hvilket betyder, at indretning, beliggenhed og udsigt kan variere. Plantegningen giver det mest korrekte indtryk af denne lejligheds oprindelige opbygning.

Ejendommen består af i alt 42 lejligheder med henholdsvis 2 til 3 værelser, med størrelser på mellem 44 og 76 kvadratmeter. Bygningskomplekset er opdelt i tre adskilte bygninger og har en fordelagtig placering i tæt nærhed til lokale dagligvarebutikker. Til ejendommen hører desuden en hyggelig fælles gårdhave, hvor beboere kan mødes og socialisere. For dem, der har kæledyr, er der mulighed for at ansøge om tilladelse til husdyr.

Beliggenheden er attraktiv med kort afstand til både centrum og naturskønne arealer. Nærheden til letbanestoppestedet gør det nemt at komme til Odense centrum, det velbesøgte Rosengårdscenter samt Syddansk Universitet. Området byder også på grønne omgivelser som for eksempel Munkemose, hvor man kan finde ro og nyde naturen.

  • Forudbetalt leje: 7.400
  • Depositum: 7.400
  • A/C-forbrug: 550
  • Ledig: 1. august 2026
  • Indrykket:
  • Husdyr tilladt
  • Sagsnummer: 1859827