Flot 3-værelses lejlighed i Kgs. Lyngby

Rent 16.950 kr/md
Rental Period Ubegrænset
Type Lejlighed
Location Kongens Lyngby
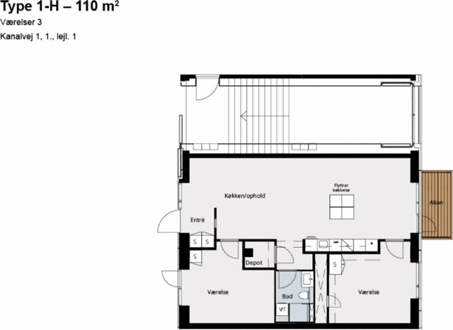
Area 110
Rooms 3 værelser

Kanalvej, etage: 1, 1..

Bemærk venligst, at de viste billeder ikke stammer fra denne specifikke lejlighed, men blot skal illustrere boligtypen. Plantegningen svarer dog til den pågældende bolig.

Lejligheden byder på tre værelser fordelt på to soveværelser, et badeværelse og et rummeligt køkken-alrum, som fungerer som husets centrale opholdsrum. Den naturlige adgang til dagslys sikres gennem velplacerede vinduer, der skaber et lyst og behageligt indeklima.

Køkkenområdet fremstår stort og indbydende med lyse Invita-elementer i et elegant og tidløst design, herunder en komplet hvidvarepakke. Badeværelset er ligeledes udført med Invita-elementer, hvilket sikrer en gennemgående og harmonisk designlinje i hele lejligheden.

Boligen er beliggende i Kanalvejshusene, som ligger centralt i Kgs. Lyngby. Herfra er der nem gåafstand til Lyngby Hovedgade, Lyngby Storcenter og Magasin, hvor man kan finde gode muligheder for indkøb og shopping. Modsat ejendommen findes store grønne områder, der inviterer til både leg og udendørs aktiviteter.

Ejendommen består af i alt 145 boliger med størrelse fra 64 til 173 m² og mellem 2 og 5 værelser, hvilket sikrer et bredt udvalg til forskellige boligbehov. Nybyggeriet imødekommer ønsket om en moderne og stilren bolig, hvor mange lejligheder råder over store altaner, der giver mulighed for at opholde sig udendørs. Der er desuden adgang til en fælles atriumgård på første sal.

Placeringen giver gode transportforbindelser med kort afstand til Lyngby Lokalbane, der forbinder Kgs. Lyngby med Nærum og Jægersborg. Fra Lyngby station kan man på 15 minutter nå Nørreport Station med S-tog. I den nærmeste fremtid vil letbanen også få direkte forbindelse til Kgs. Lyngby.

Til boligen hører et depotrum, som kan befinde sig enten i selve lejligheden eller i kælderen, og der er mulighed for at leje en parkeringsplads i kælderen, hvis det er ledigt.

Energimærke:
  • Altan/terasse
  • Parkering
  • Elevator
  • Forudbetalt leje: 0
  • Depositum: 50.850
  • A/C-forbrug: 1.393
  • Ledig: 31. maj 2026
  • Indrykket:
  • Husdyr tilladt
  • Sagsnummer: 1856385
Bemærk: Placeringen af boligen på kortet ovenfor kan være omtrentlig. Kontakt venligst udlejer for nærmere information om boligens beliggenhed