Denne bolig er desværre udlejet

Luksuslejlighed i spændende ejendom

Rent 8.250 kr/md
Rental Period Ubegrænset
Type Lejlighed
Location Odense C
Area 103
Rooms 1 værelser
  • Digital fremvisning tilbydes. Udlejer har mulighed for at fremvise lejemålet digitalt via eksempelvis videoopkald efter aftale.

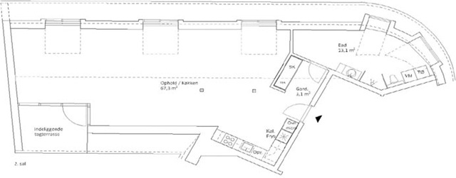
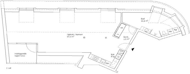
Grønnegade, etage: 2, th..

Stor og spændende étværelses lejlighed med New Yorker-stil beliggende på Grønnegade i centrum af Odense C, et af byens mest eftertragtede områder. Her befinder du dig tæt på gågadens puls med et væld af specialforretninger, caféer og restauranter, der bidrager til en levende og hyggelig stemning året rundt. Samtidig er der blot en kort afstand til grønne områder som Eventyrhaven samt de naturskønne stier langs Odense Å, som inviterer til både afslapning og udendørs aktiviteter.

Kvarteret tilbyder en unik kombination af byliv og natur, og den nemme adgang til offentlig transport samt Odense Banegård kun få minutters gang væk giver gode forbindelser både lokalt og regionalt. Grønnegade er ideel for dig, der ønsker en central placering med ro, høj kvalitet og nærhed til alt det nødvendige.

Lejligheden rummer et stort værelse med en veludnyttet pladsfordeling samt moderne faciliteter som opvaskemaskine, mikroovn, vaskemaskine og tørretumbler. Ydermere er der en dejlig tagterrasse orienteret mod øst (3,40 m x 2,80 m), hvor du kan nyde frisk luft i fredelige omgivelser.

Der er mulighed for at tilkøbe en parkeringsplads, og udover huslejen betaler du udlejer for vand og varme, som opkræves efter a conto forbrug. El og antenneafgifter bliver faktureret direkte af de respektive forsyningsselskaber. Til boligen hører desuden adgang til fælles gårdmiljø og cykelskur.

  • Altan/terasse
  • Forudbetalt leje: 8.250
  • Depositum: 24.750
  • A/C-forbrug: 1.850
  • Ledig: Straks
  • Indrykket:
  • Husdyr ikke tilladt
  • Sagsnummer: 1855061

Brugere der har set denne bolig, har også set disse: