83 m2 lejlighed på Blegkilde Alle

Rent 7.845 kr/md
Rental Period Ubegrænset
Type Lejlighed
Location Aalborg
Area 83
Rooms 3 værelser
  • Digital fremvisning tilbydes. Udlejer har mulighed for at fremvise lejemålet digitalt via eksempelvis videoopkald efter aftale.

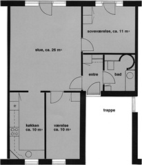
Blegkilde Alle, etage: ST..

I stueetagen på Blegkilde Allé i Aalborg findes denne attraktive lejlighed, der ligger i et fredeligt område med en meget kort afstand til byens centrum. Beliggenheden er ideel for den, der ønsker ro, men samtidigt vil have nem adgang til bylivet.

Lejligheden indeholder et moderne køkken fra Invita, som er udført i et tidløst design og udstyret med kvalitetsapparater fra Siemens. Her kan nævnes en indbygningsovn med pyrolysefunktion, en induktionskogeplade, et kombineret køle- og fryseskab samt en opvaskemaskine, alt sammen integreret for et stilrent udseende. Badeværelset er moderniseret og har både vaskemaskine og tørretumbler installeret. Endvidere byder boligen på et soveværelse og et ekstra værelse, begge udstyret med indbyggede skabe til opbevaring.

Området er egnet for mennesker i alle aldre og har mange fordele tæt på. Uddannelsesinstitutioner, skole og daginstitutioner findes i nærheden, og man kan nå centrum hurtigt enten på cykel eller med bybus. Naturen ligger få skridt væk for dem, der ønsker at opholde sig ude i det grønne, mens dagligvareindkøb kan klares til fods. Adgang til motorvejen er også let.

Som lejer får man glæde af fine fællesarealer, der blandt andet byder på legeplads for børnene samt bord-bænkesæt placeret i de omgivende grønne områder, hvor solen kan nydes. Derudover er det muligt at leje store fælleslokaler med gode faciliteter, der egner sig til familiesammenkomster eller besøg af venner. Desuden kan man leje et gæsteværelse, som er fuldt møbleret med sengelinned og adgang til toilet.

Til de mere stille stunder forefindes en hyggelig lounge, hvor man kan slappe af med en bog fra det tilhørende bibliotek, samtidig med at man læser friske aviser og tidsskrifter og har mulighed for at købe forfriskninger i loungen. Hvis cyklen har brug for reparation eller luft, findes et cykelværksted til ejendommen, hvor man kan klare dette.

For bilejere og gæster tilbydes gratis parkering, og der er ladestandere til elbiler tilknyttet ejendommen. Kompleksets lejligheder varierer i størrelse og indretning, hvilket gør det muligt at finde en bolig, som matcher det individuelle behov.

Det er dog vigtigt at bemærke, at udlejning ikke finder sted til personer, som er registreret i RKI.

  • Delevenlig
  • Parkering
  • Forudbetalt leje: 0
  • Depositum: 15.690
  • A/C-forbrug: 800
  • Ledig: 1. marts 2026
  • Indrykket:
  • Husdyr tilladt
  • Sagsnummer: 1848813

Brugere der har set denne bolig, har også set disse: