Møbleret værelse på 8 m2
8.005 kr/md
Ubegrænset
Værelse
København SV
8 m²
1 værelser
.
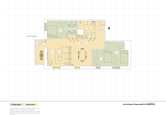
Lejligheden 'Aurora' finder man på 1. sal i en nyopført bygning beliggende på den naturskønne ø Teglholmen i Sydhavnsområdet. Boligen indeholder tre separate soveværelser, et rummeligt badeværelse til fælles brug samt en opholdsstue med et moderne, åbent køkken og tilhørende terrasse.Der medfølger en kvalitetseng, komplet med dyne, pude og sengetøj, samt et natbord udstyret med læselampe. Hvert værelse rummer også et skrivebord med kontorstol og skrivebordslampe, ligesom der er en garderobe med både bøjlestang og skuffer til opbevaring. Under sengen findes desuden opbevaringskasser. Gardiner, spejl, vasketøjskurv, skraldespand, tæpper og pynteting følger ligeledes med i lejligheden.
- Altan/terasse
- Lejemålet udlejes møbleret
- Se plantegning
- Forudbetalt leje: Kontakt udlejer
- Depositum: Kontakt udlejer
- A/C-forbrug: Kontakt udlejer
- Ledig: 1. maj 2026
- Indrykket:
- Muligvis tilladt - spørg udlejer
- Sagsnummer: 1845105