Denne bolig er desværre reserveret

Få besked når denne bolig eller lignende boliger bliver ledige. Opret dig gratis her og modtag relevante emner

Stor lejlighed i det populære Føtexhus, Vejle

Rent 9.500 kr/md
Rental Period Ubegrænset
Type Lejlighed
Location Vejle
Area 107
Rooms 2 værelser

Holmen, etage: 1, 1..

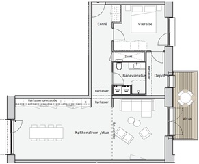
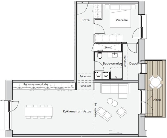
I en eftertragtet del af byen udbydes denne særdeles rummelige 2-værelses lejlighed til leje, der med sit design henvender sig til den enkelte beboer.

Indgangen leder til en stor entré, som giver adgang til både soveværelset, badeværelset samt et åbent køkken-alrum kombineret med stuen. Fra denne del af boligen er der udgang til en altan. Køkkenet er udført med hvide elementer og er udstyret med køle-/fryseskab, indbyggede kogeplader, ovn samt opvaskemaskine. Det generøse soveværelse har desuden adgang til et praktisk depotrum, og badeværelset indeholder en vaskemaskine og tørretumbler i form af en vaskesøjle.

De månedlige forbrugsudgifter er fordelt med en aconto varmebetaling på 400 kr. samt aconto vand på 300 kr. Bygningen tilbyder fælles adgang til en tagterrasse, hvor alle beboere kan opholde sig frit.

Lejligheden er placeret i det nye "Føtexhus" med en central beliggenhed i Vejle, hvor den fremtræder på et markant hjørne mellem byens centrum og havneområdet tæt ved Vejle Havn. Offentlig transport og diverse indkøbsmuligheder findes tæt på boligen.

Bemærk, at de viste billeder stammer fra en tilsvarende lejlighed og ikke nødvendigvis denne specifikke. Der er mulighed for at leje en parkeringsplads for 650 kr. om måneden, selvom der i øjeblikket ikke er ledige pladser, men man kan blive skrevet op på venteliste.

Husdyr er ikke tilladt i denne bolig. Hvis du ønsker at høre nærmere, bedes du sende oplysninger om dig selv, herunder alder, beskæftigelse eller studieforhold, telefonnummer og e-mailadresse.

  • Altan/terasse
  • Elevator
  • Forudbetalt leje: 9.500
  • Depositum: 28.500
  • A/C-forbrug: 700
  • Ledig: Straks
  • Indrykket:
  • Husdyr ikke tilladt
  • Sagsnummer: 1843593