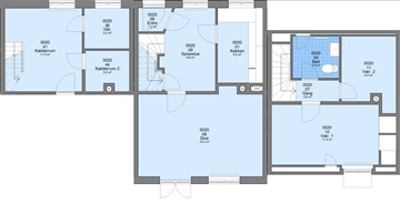
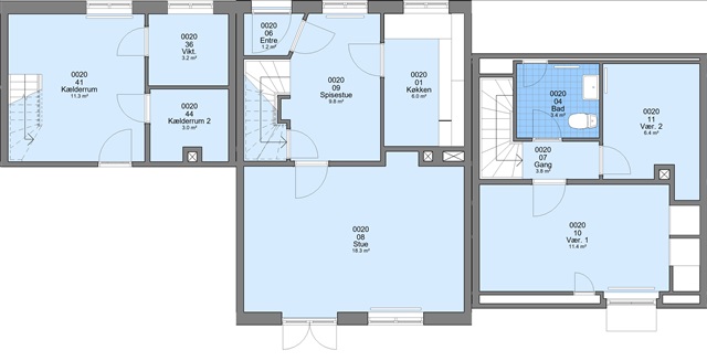
3 værelses lejlighed på 73 m2

Rent 5.469 kr/md
Rental Period Under 1 år
Type Lejlighed
Location Hundested
Area 73
Rooms 3 værelser

Vængevej.

Boligerne er beliggende centralt og opført som små rødstensbygninger, enten som dobbelthuse eller i form af rækkehuse. Hver bolig strækker sig over to etager og indeholder desuden en kælder, mens der er adgang til et fælles vaskeri for beboerne.

Området har skole og daginstitutioner i umiddelbar nærhed, og den kollektive trafik fungerer godt. Fra trinbrættet ved Vibehus Station, som ligger tæt på, er der nem forbindelse videre til Hillerød. Hundested byder på gode muligheder for indkøb, og Hundested Havn, der ligger cirka to kilometer fra boligerne, har en færgerute til Rørvig.

Det er vigtigt at være opmærksom på, at boligafdelingen Ullerupvænge har vedtaget en omfattende helhedsplan, som indebærer renovering af samtlige boliger i området. Renoveringsarbejdet forventes at begynde i starten af 2027 og vil vare frem til 2028. Under denne proces vil alle beboere skulle genhuses midlertidigt. For at kunne tilbyde genhusningsboliger samles et tilstrækkeligt antal boliger til formålet, hvilket har medført, at både de interne og eksterne ventelister for boligselskabets afdelinger midlertidigt er sat på pause. Dette har konsekvenser i form af længere ventetider for nye boligansøgere.

Denne bolig administreres af et almennyttigt boligselskab, og det er derfor vigtigt at gøre sig bekendt med de tilhørende regler. Ved telefonisk henvendelse kan man kontakte selskabet mandag til fredag i tidsrummet fra 9:30 til 15:00, hvor man skal taste 1 for at blive ført direkte igennem.

Energimærke:
  • Forudbetalt leje: Kontakt udlejer
  • Depositum: 12.782
  • A/C-forbrug: 284
  • Ledig: 15. maj 2026
  • Indrykket:
  • Husdyr tilladt
  • Sagsnummer: 1811216