4 værelses lejlighed inkl. parkering

Rent 12.850 kr/md
Rental Period Ubegrænset
Type Lejlighed
Location Odense SV
Area 105
Rooms 4 værelser

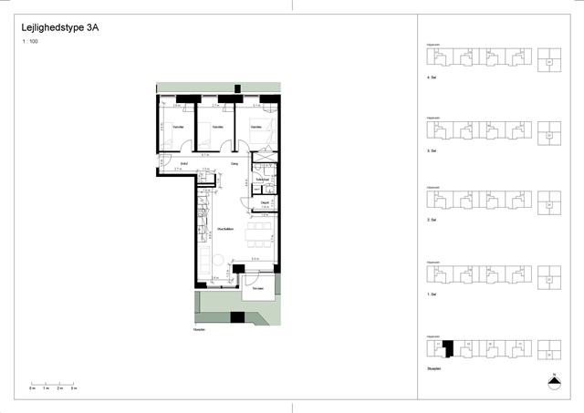
Klippesalen, etage: ST. TV..

Denne bolig i stueetagen er indrettet med en velgennemtænkt planløsning, der opnår en harmonisk sammenhæng mellem fællesrum og private soveområder. Den rummer rigelig plads til både familieliv og rolige øjeblikke. Køkken og stue er integreret i et åbent opholdsrum, hvor madlavning og samvær smelter naturligt sammen. Store vinduespartier sørger for et lyst og indbydende miljø, samtidig med at de åbner direkte ud mod terrassen, der fungerer som en forlængelse af boligens opholdsareal og bringer udelivet tæt ind på hjemmet.

Tre værelser er samlet i en stille afdeling, hvilket skaber en naturlig skillelinje mellem de fælles rum og de private områder. Disse rum har en fleksibel anvendelse og kan benyttes som soveværelse, børneværelser eller hjemmekontor efter behov. Badeværelset er praktisk indrettet med en særskilt bruseniche samt en vaskesøjle, og derudover findes der et funktionelt depotrum, som sikrer ekstra opbevaringsmuligheder i dagligdagen. Boligens entré og gangbinder alle rum sammen på en overskuelig og enkel måde.

Sammenfattende kan boligen fremhæves for sin gode rumfornemmelse og den effektive planløsning, der letter hverdagslivet. Terrassen bidrager med yderligere plads til ophold og udendørs aktiviteter, hvilket øger boligens anvendelighed og komfort.

  • Forudbetalt leje: 0
  • Depositum: 36.657
  • A/C-forbrug: Kontakt udlejer
  • Ledig: 1. juli 2026
  • Indrykket:
  • Husdyr tilladt
  • Sagsnummer: 1799906