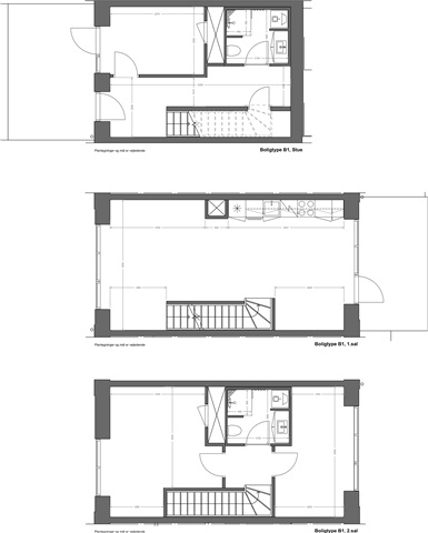
Blokhaven, 122 m2, 4 værelser, 16.250 kr.

Rent 16.250 kr/md
Rental Period Ubegrænset
Type Hus/villa
Location Skovlunde
Area 122
Rooms 4 værelser

Blokhaven.

I Skovlunde kan du finde lejeboliger i forskellige størrelser, beliggende blot 20 minutter fra København. Udvalget består af lejligheder med 2 til 4 værelser, fordelt på et areal mellem 55 og 100 m², samt spritnye rækkehuse, som spænder fra 79 til 143 m². Samtlige boliger er udstyret med gulvvarme i samtlige rum, integrerede hvidevarer og et moderne ventilationsanlæg. De fleste lejligheder og huse har desuden enten en rummelig terrasse, altan eller en privat tagterrasse tilknyttet. Det er muligt at flytte ind fra maj 2024 og frem.

  • Forudbetalt leje: 15.295
  • Depositum: 45.885
  • A/C-forbrug: Kontakt udlejer
  • Ledig: 1. juli 2026
  • Indrykket:
  • Husdyr tilladt
  • Sagsnummer: 1796418