Delevenlig hus/villa søger lejer

Rent 13.200 kr/md
Rental Period Ubegrænset
Type Hus/villa
Location Skovlunde
Area 80
Rooms 3 værelser

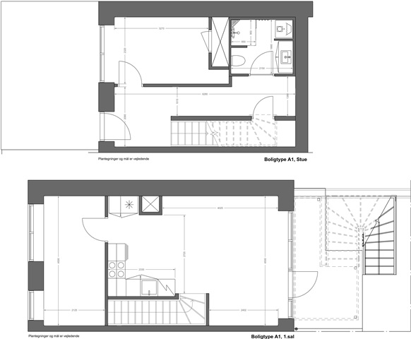
Blokhaven.

I Skovlunde, som kun ligger en kort 20-minutters rejse fra København, udbydes lejeboliger i forskellige størrelser, så der er noget for enhver smag. Her kan man vælge mellem lejligheder med 2 til 4 værelser, hvor størrelsen varierer fra 55 til 100 kvadratmeter, eller man kan leje et af de nybyggede rækkehuse, som spænder fra 79 til 143 kvadratmeter. Samtlige boligenheder er udstyret med gulvvarme i samtlige rum, inkluderer indbyggede hvidevarer og er forsynet med et moderne ventilationssystem. Mange af boligerne har enten en rummelig terrasse, en altan eller en privat tagterrasse tilknyttet. Boligerne står klar til indflytning fra maj 2024 og frem.

  • Forudbetalt leje: 13.200
  • Depositum: 39.600
  • A/C-forbrug: Kontakt udlejer
  • Ledig: 1. marts 2026
  • Indrykket:
  • Husdyr tilladt
  • Sagsnummer: 1796387

Brugere der har set denne bolig, har også set disse: