God 3-vær. bolig med altan. Gulvvarme og mulighed for p plads i kælderen. Central beliggenhed. Ejendom fra 2021

Rent 13.550 kr/md
Rental Period Ubegrænset
Type Lejlighed
Location Hillerød
Area 82
Rooms 3 værelser

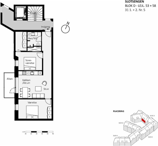
Klostervej, etage: 1. 3..

Lejlighederne er designet med fokus på at skabe lyse og imødekommende rum, hvor de store vinduespartier sørger for rigeligt med dagslys i alle opholdsarealer. Slotsengen står som et symbol på både høj kvalitet og komfort. Det skal bemærkes, at de viste fotos muligvis stammer fra en anden bolig, hvorfor indretningen, placeringen og udsigten kan være forskellige. For præcis indretning henvises der til plantegningen for denne lejlighed.

Bygningen, der blev opført i 2021 efter nutidige standarder for funktionalitet og komfort, indeholder mange velovervejede detaljer samt moderne faciliteter, som skal sikre en enkel og behagelig hverdag. Der er mulighed for at købe adgang til parkeringspladser i ejendommens underjordiske garage, hvilket sikrer nem og tryg parkering tæt ved boligen. Hver opgang er udstyret med både elevator og trapper, som fører direkte til enten underetagen eller hovedindgangen.

Den særlige placering af dette boligkompleks giver nem adgang til alle de tilbud, Hillerød byder på. Med Frederiksborg Slot som nabo kan man opleve en historisk og stemningsfuld atmosfære ved blandt andet Slotssøen og i Slotshaven. Hillerøds livlige gågade og Slotsarkaderne med deres udvalg af butikker og restauranter ligger kun en kort gåtur væk, så dagligdagens behov er let tilgængelige. Endvidere er Streetfood Hillerød, et rislende åløb samt grønne, private kolonihaver, hvor der dyrkes planter som bælgfrugter og chili i sommermånederne, beliggende blot få skridt fra bygningen - alt sammen faciliteter, der vil kunne præge hverdagen i en bolig i Slotsengen.

  • Forudbetalt leje: 13.550
  • Depositum: 40.650
  • A/C-forbrug: 686
  • Ledig: 1. juli 2026
  • Indrykket:
  • Husdyr tilladt
  • Sagsnummer: 1774082