96 m2 hus/villa. Husdyr er tilladt

Rent 9.295 kr/md
Rental Period Ubegrænset
Type Hus/villa
Location Holstebro
Area 96
Rooms 3 værelser

Under Egen.

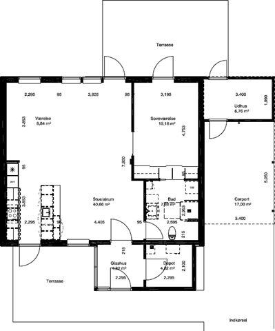
Dette etplans rækkehus er placeret i et fredeligt område inden for et nyere boligkvarter. Boligen byder på en rummelig entré, et stort køkken/alrum, der er åbent for stuen, hvorfra der er adgang til både et soveværelse, et ekstra værelse samt et badeværelse. Fra stuen er der udgang til en dejlig terrasse, som grænser op til en mindre have med sol hele dagen.

Som en del af boligen hører en carport samt et mindre udhus, der egner sig til opbevaringsformål.

Lejer af boligen afholder selv udgifter til forbrug såsom vand, varme samt el, som betales direkte til leverandørerne.

Beliggenheden er attraktiv med kort afstand til skole, sportsfaciliteter og indkøbsmuligheder.

  • Delevenlig
  • Altan/terasse
  • Parkering
  • Forudbetalt leje: 9.295
  • Depositum: 27.885
  • A/C-forbrug: Kontakt udlejer
  • Ledig: 1. marts 2026
  • Indrykket:
  • Husdyr tilladt Efter aftale
  • Sagsnummer: 1735944