Super flot lejlighed i ejendom tegnet af Friis & Moltke.

Rent 11.300 kr/md
Rental Period Ubegrænset
Type Lejlighed
Location Ebeltoft
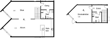
Area 112
Rooms 3 værelser

Hvide Hus Vej, etage: L4..

Minimalistisk dansk design med super beliggenhed i Ebeltoft. I sin tid tegnet af Friis & Moltke. Denne tidligere del af Hotel Hvide Hus er nu blevet komplet renoveret og den nye lejer vil være den første i denne dejlige nye lejlighed. Dejligt centralt beliggende. Lejligheden er udstyret med HTH køkken og alt i hårde hvidevarer. Lejligheden indeholder hele to badeværelser. Der er både en balkon og en terrasse med udsigt over havet. Der bliver etableret mulighed for at oplade elbiler på parkeringspladsen.

Energimærke:
  • Forudbetalt leje: 11.300
  • Depositum: 33.900
  • A/C-forbrug: 1.000
  • Ledig: Straks
  • Indrykket:
  • Kontakt udlejer Mindre dyr er tilladt.
  • Sagsnummer: 1705290
Bemærk: Placeringen af boligen på kortet ovenfor kan være omtrentlig. Kontakt venligst udlejer for nærmere information om boligens beliggenhed