Skøn lejlighed i midtbyen

Rent 4.800 kr/md
Rental Period Ubegrænset
Type Lejlighed
Location Viborg
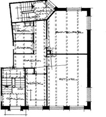
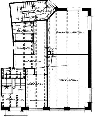
Area 74
Rooms 2 værelser
  • Digital fremvisning tilbydes. Udlejer har mulighed for at fremvise lejemålet digitalt via eksempelvis videoopkald efter aftale.

Skovgaardsvej, etage: 1. th..

Der er mulighed for tidligere overtagelse.
BEMÆRK: plantegningen er fra stue lejligheden i samme ejendom, men ruminddelingen er næsten identisk.
Rigtig fin 2 værelses lejlighed i centrum af Viborg tæt på skole, biograf, stadion indkøbsmuligheder osv.
Lejligheden ligger på første sal i stille område af Viborg.
Der er kælderrum til lejemålet, og fælles vaskefaciliteter med vaskemaskine og tørretumbler i kælder

  • Forudbetalt leje: 2.400
  • Depositum: 14.400
  • A/C-forbrug: 1.175
  • Ledig: 1. maj 2026
  • Indrykket:
  • Husdyr tilladt
  • Sagsnummer: 1524829