Lys 2-værelseslejlighed i midtbyen

Rent 7.200 kr/md
Rental Period Ubegrænset
Type Lejlighed
Location Esbjerg
Area 72
Rooms 2 værelser

Kongensgade, etage: 1.TV..

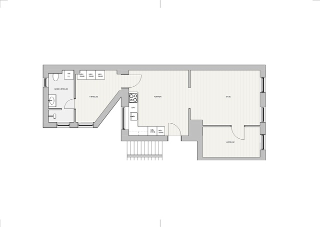
Lejligheden, som i øjeblikket gennemgår en renovering, har endnu ikke tilhørende fotos, men det er muligt at arrangere en fremvisning. Den ligger på første sal i en fredelig og velholdt ejendom, som befinder sig midt i Esbjergs gågade. Boligen rummer et rummeligt og nyere køkken, der er udstyret med hvide HTH-skabe samt fuldt integrerede hårde hvidevarer, herunder en opvaskemaskine. Herfra er der kig ud mod den bagvedliggende gård, og der er god plads til at indrette et spiseområde.

Badeværelset har fået nyt vaskeskab med tilhørende spejl og indeholder en bruseniche. Mellem køkken og badeværelse findes et praktisk rum, som kan anvendes til opbevaring, som hjemmekontor eller lignende formål. Stuen har afhøvlede trægulve, der også går igen i soveværelset, som er placeret som en naturlig forlængelse af stuen. Udsigten fra både stue og soveværelse vender ud mod Kongensgade.

Ejendommens beboere kan benytte en stor fælles tagterrasse. I foråret 2021 blev træ/alu-vinduer udskiftet i hele lejligheden. Det skal bemærkes, at husdyr ikke er tilladt i ejendommen.

  • Ikke delevenlig
  • Forudbetalt leje: 7.200
  • Depositum: 21.600
  • A/C-forbrug: Kontakt udlejer
  • Ledig: 1. februar 2026
  • Indrykket:
  • Husdyr ikke tilladt
  • Sagsnummer: 1515199

Brugere der har set denne bolig, har også set disse: