1 værelses lejlighed på 44 m2

Rent 3.995 kr/md
Rental Period Ubegrænset
Type Lejlighed
Location Viborg
Area 44
Rooms 1 værelser

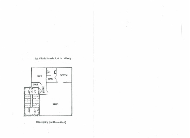
Sct. Villads Stræde, etage: st.th..

Denne lejlighed er beliggende i Viborg med en meget central placering, kun en kort afstand fra byens centrum, Borgvold og Viborg-søerne. Lejligheden byder på en lys stue, et køkken udstyret med hvidevarer, et mindre soveværelse, et badeværelse samt en entré med indbygget skabsplads. Boligen har trægulve og er forsynet med nyligt udskiftede vinduer.

Der hører et personligt depotrum til lejligheden i kælderen, og beboerne har adgang til vaskefaciliteter i fællesvaskeriet samt en hyggelig have, som deles med de øvrige beboere i ejendommen.

  • Forudbetalt leje: Kontakt udlejer
  • Depositum: 11.985
  • A/C-forbrug: 550
  • Ledig: 1. juli 2026
  • Indrykket:
  • Husdyr ikke tilladt
  • Sagsnummer: 1451074